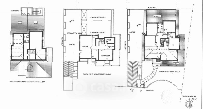
Villa in vendita Via Mozart 13, Usmate Velate
Salva
Casa.it
1/29
  • Street View
  • Map