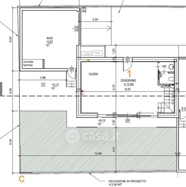
Villa in vendita Via Alessandro Manzoni , Vaprio d'Adda
Salva
Casa.it
1/37
  • Street View
  • Map