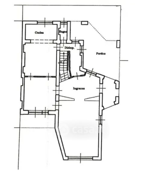
Villa in vendita Via Brunico 18, Varese
Salva
Casa.it
1/31
  • Street View
  • Map