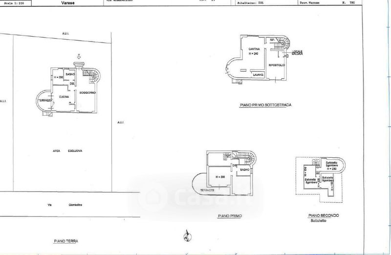
Villa in vendita Via Giambellino 29, Varese
Salva
Casa.it
1/51
  • Street View
  • Map