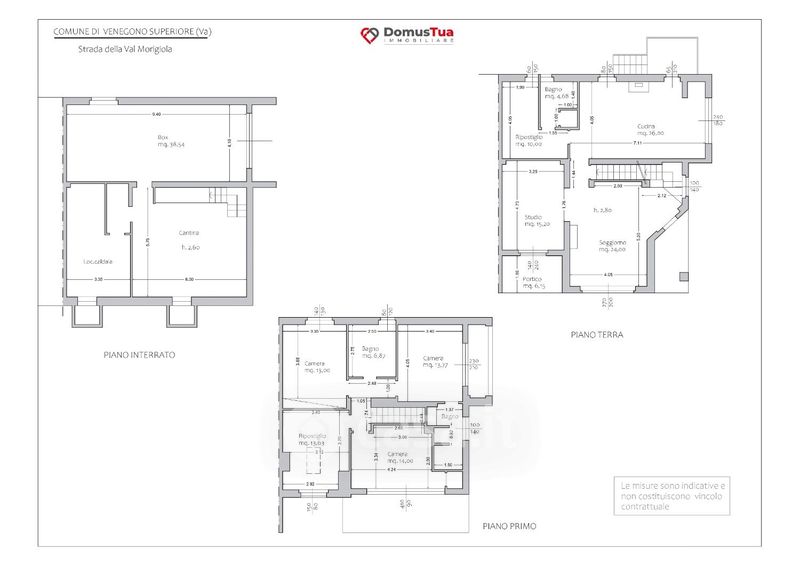
Villa in vendita Strada Val Moriggiola Della , Venegono Superiore
Salva
Casa.it
1/69
  • Street View
  • Map