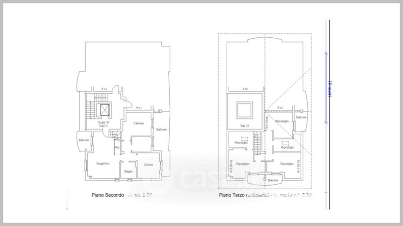
Villa in vendita Frazione San Michele , Fabriano
Salva
Casa.it
1/32
  • Street View
  • Map