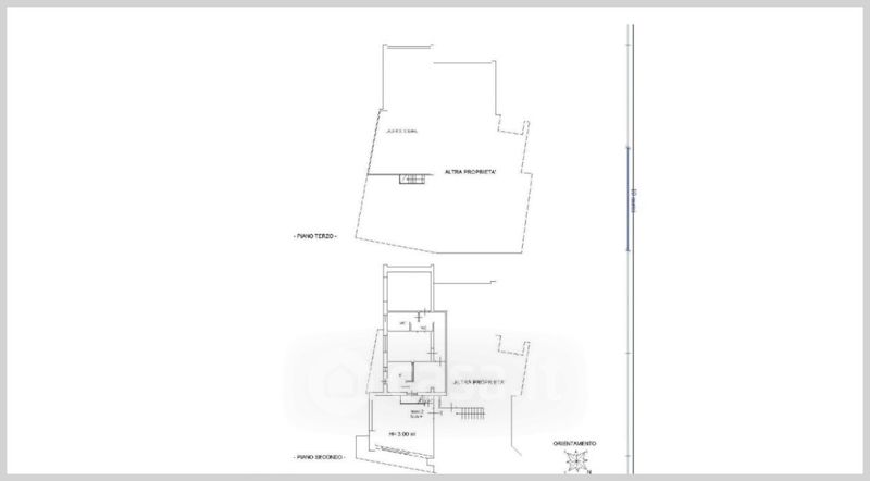
Villa in vendita Via Cannelle , Fano
Salva
Casa.it
1/37
  • Street View
  • Map