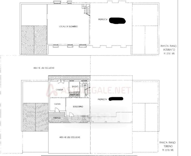
Villa in vendita Via Antonio Appino , Favria
Salva
Casa.it
1/32
  • Street View
  • Map