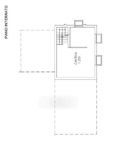
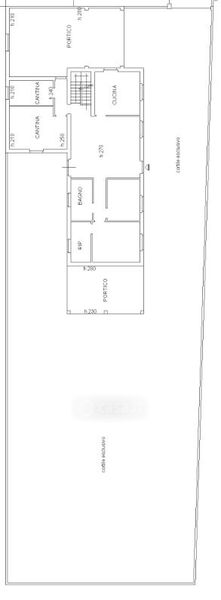
Villa in vendita Via XXV Aprile 61 C, Galliate
Salva
Casa.it
1/65
  • Street View
  • Map