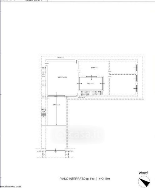
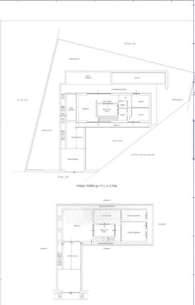
Villa in vendita Strada Moncalvo , Moncalieri
Salva
Casa.it
1/44
  • Street View
  • Map