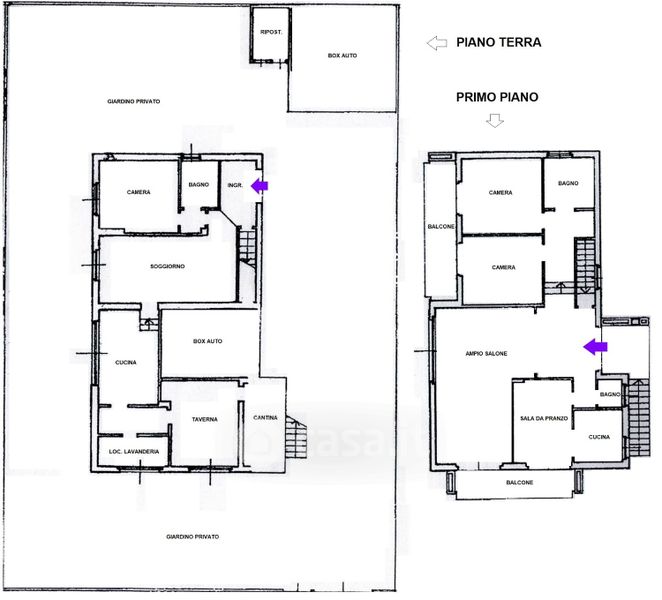
Villa in vendita Via Cilea Francesco , Novara
Salva
Casa.it
1/35
  • Street View
  • Map