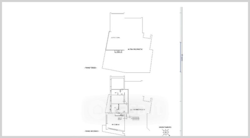
Villa in vendita Via Pisterno , Sale San Giovanni
Salva
Casa.it
1/32
  • Street View
  • Map