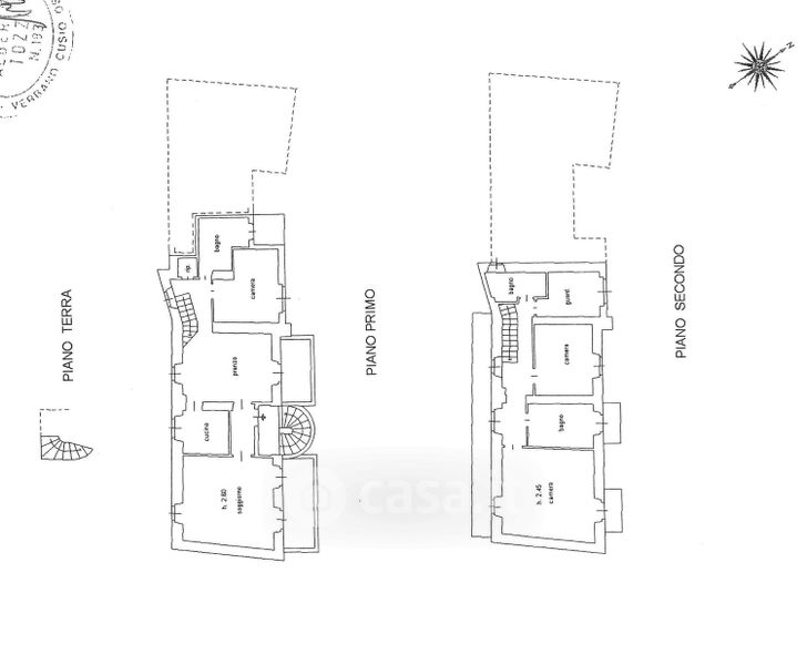
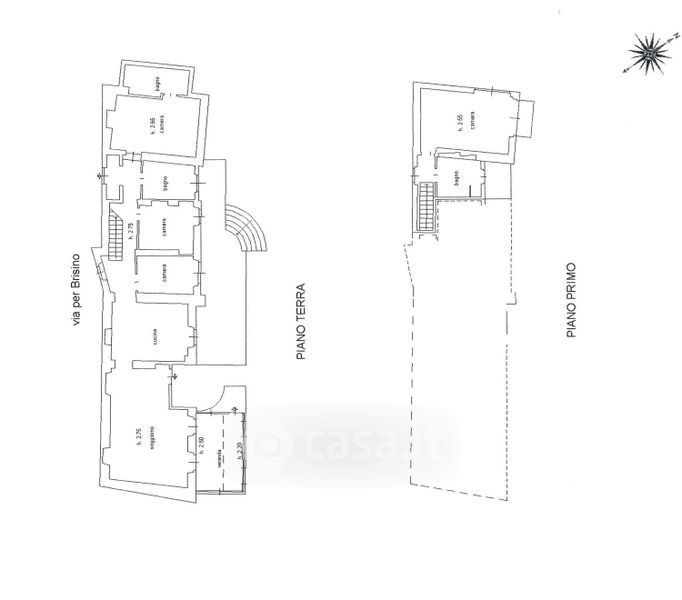
Villa in vendita Via per Brisino 1, Stresa
Salva
Casa.it
1/34
  • Street View
  • Map