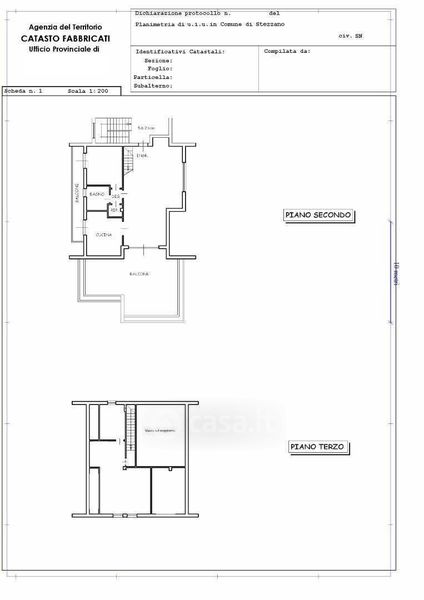
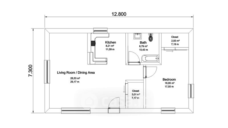
Villa in vendita Via Vittorio Cuniberti , Torino
Salva
Casa.it
1/39
  • Street View
  • Map