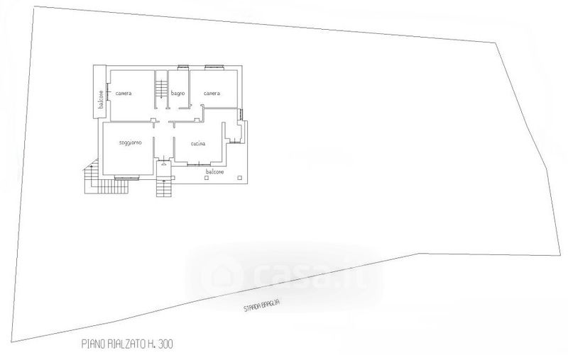
Villa in vendita Strada Braglia 22, Valenza
Salva
Casa.it
1/34
  • Street View
  • Map