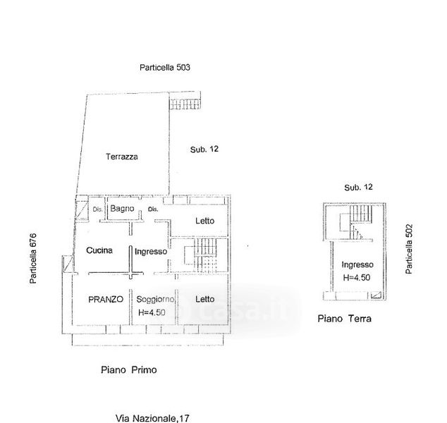
Villa in vendita Via Nazionale , Alessano
Salva
Casa.it
1/33
  • Street View
  • Map