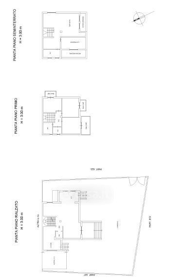
Villa in vendita Via Nazionale , Bari
Salva
Casa.it
1/52
  • Street View
  • Map