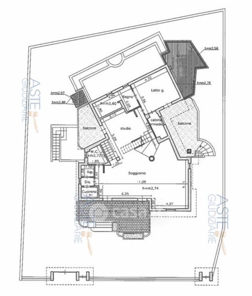
Villa in vendita Viale la Testa 13, Bisceglie
Salva
Casa.it
1/31
  • Street View
  • Map