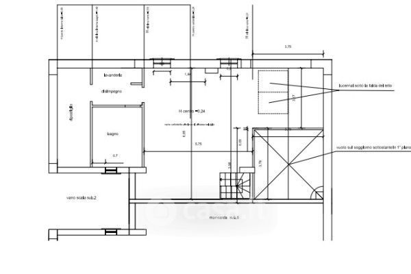
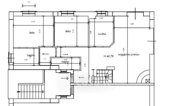
Villa in vendita Piazza Plebiscito , Candela
Salva
Casa.it
1/24
  • Street View
  • Map