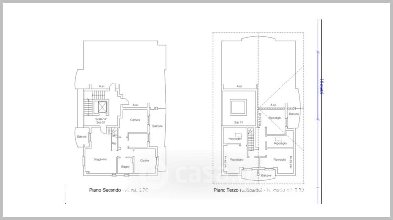
Villa in vendita Via A. de Gasperi , Cellamare
Salva
Casa.it
1/37
  • Street View
  • Map