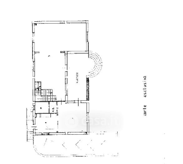
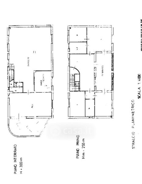
Villa in vendita Via del Salice , Foggia
Salva
Casa.it
1/33
  • Street View
  • Map