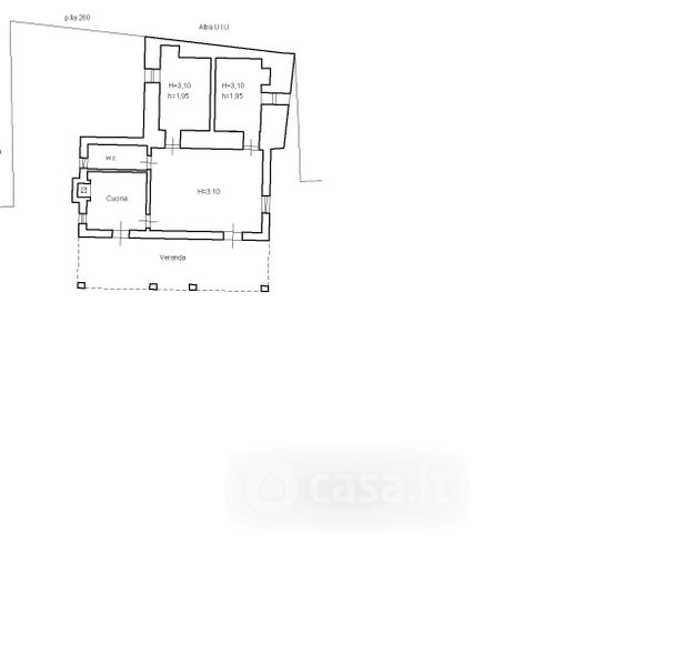
Villa in vendita Strada Paretone Zona I 278, Martina Franca
Salva
Casa.it
1/39
  • Street View
  • Map