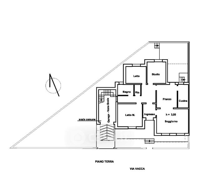
Villa in vendita Via Nicola Vacca 24, Nardò
Salva
Casa.it
1/28
  • Street View
  • Map