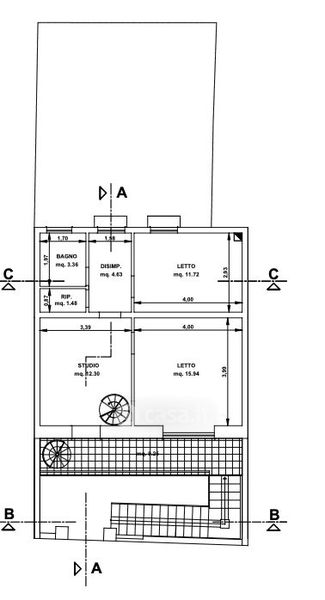
Villa in vendita Via Domenicantonio Pisacane 68, Nardò
Salva
Casa.it
1/30
  • Street View
  • Map