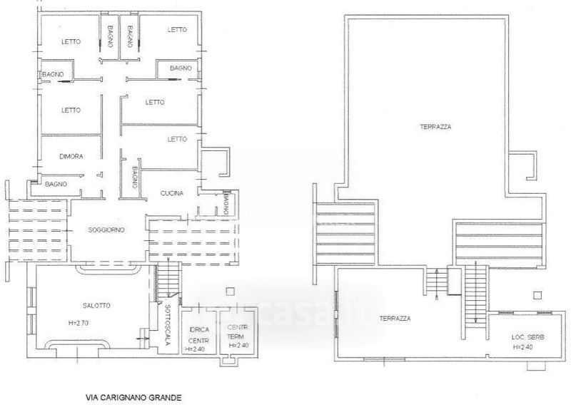
Villa in vendita Via Carignano Grande , Nardò
Salva
Casa.it
1/49
  • Street View
  • Map