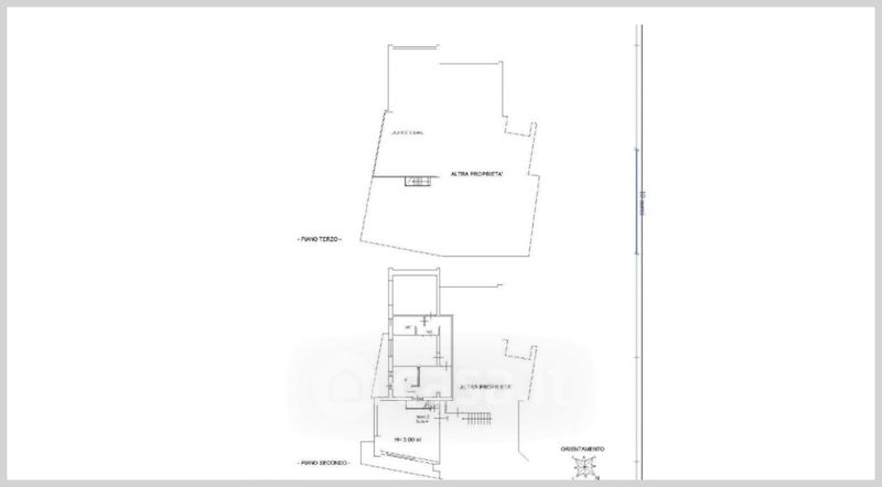
Villa in vendita Contrada Posta Farano , San Giovanni Rotondo
Salva
Casa.it
1/32
  • Street View
  • Map