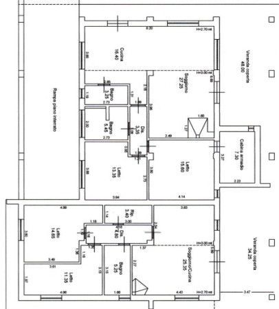
Villa in vendita Strada vicinale , Terlizzi
Salva
Casa.it
1/26
  • Street View
  • Map