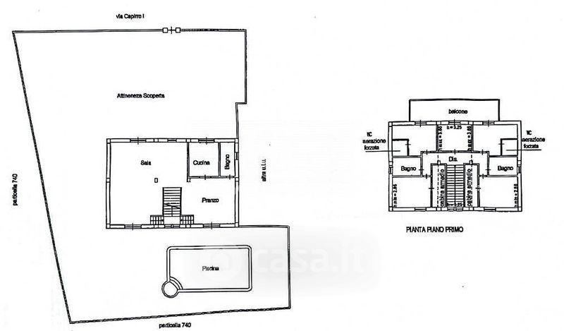
Villa in vendita Via 1° Capirro 1, Trani
Salva
Casa.it
1/29
  • Street View
  • Map