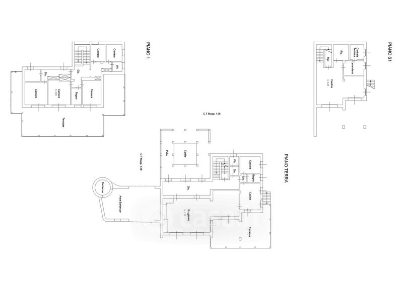
Villa in vendita Strada Vicinale Punta Giglio 53, Alghero
Salva
Casa.it
1/23
  • Street View
  • Map