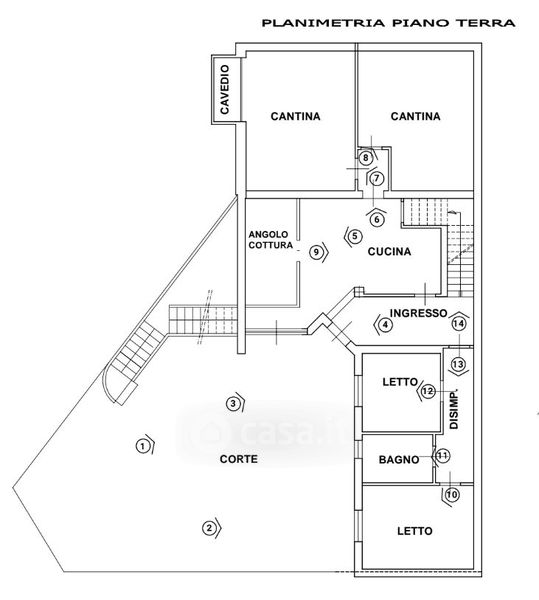
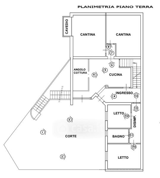
Villa in vendita Settore A , Capoterra
Salva
Casa.it
1/41
  • Street View
  • Map