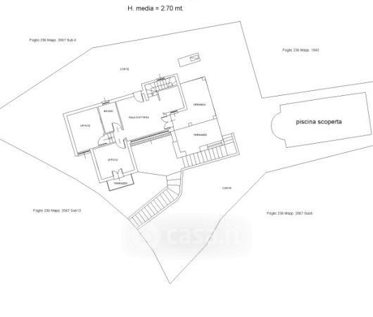
Villa in vendita Via Barbagia , Loiri Porto San Paolo
Salva
Casa.it
1/24
  • Street View
  • Map