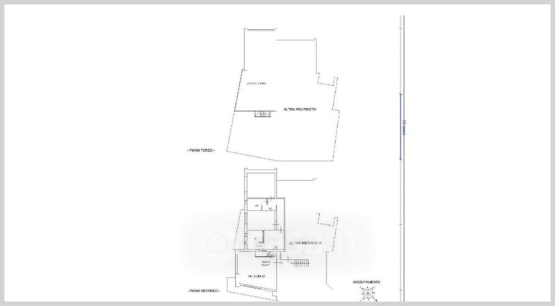
Villa in vendita Via delle Ginestre , Nuoro
Salva
Casa.it
1/32
  • Street View
  • Map