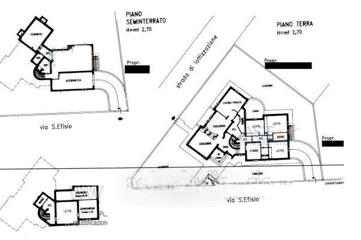
Villa in vendita Via Sant'Efisio , Pula
Salva
Casa.it
1/41
  • Street View
  • Map