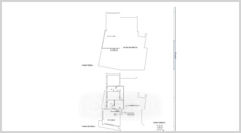
Villa in vendita Via Barbagia , Quartu Sant'Elena
Salva
Casa.it
1/37
  • Street View
  • Map