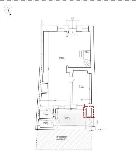
Villa in vendita Piazza San Vittorio , Santa Teresa Gallura
Salva
Casa.it
1/31
  • Street View
  • Map