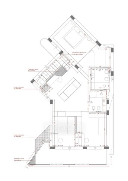
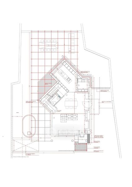
Villa in vendita Via Monte Bonifato , Alcamo
Salva
Casa.it
1/30
  • Street View
  • Map