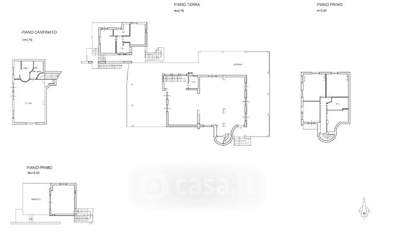
Villa in vendita Via delle Ginestre , Barcellona Pozzo di Gotto
Salva
Casa.it
1/37
  • Street View
  • Map