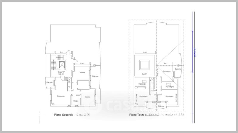
Villa in vendita Via Giovanni Mistretta , Caltagirone
Salva
Casa.it
1/32
  • Street View
  • Map