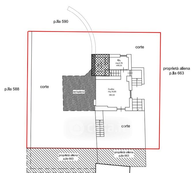
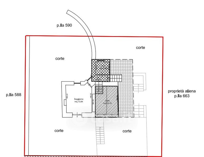
Villa in vendita Contrada Kalura , Cefalù
Salva
Casa.it
1/43
  • Street View
  • Map