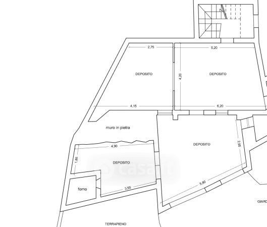
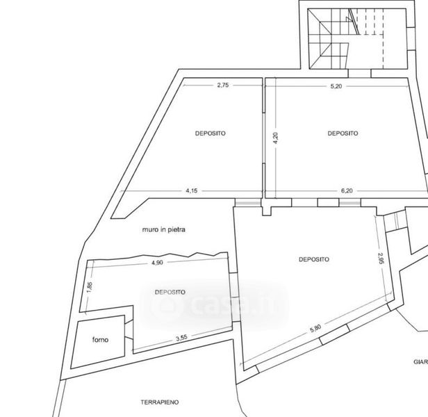
Villa in vendita Vicolo Camporeale , Marsala
Salva
Casa.it
1/20
  • Street View
  • Map