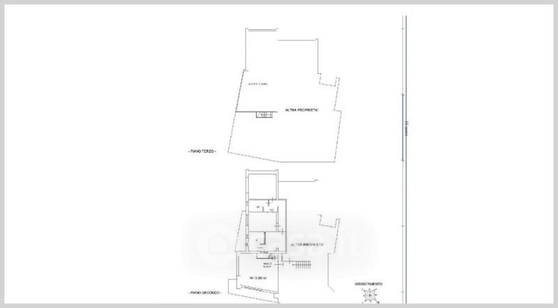
Villa in vendita Strada Statale Tarantonio , Messina
Salva
Casa.it
1/32
  • Street View
  • Map