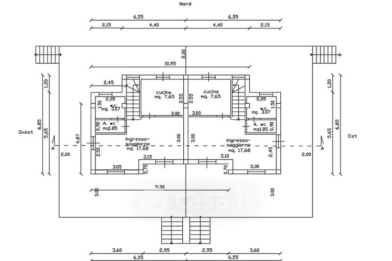
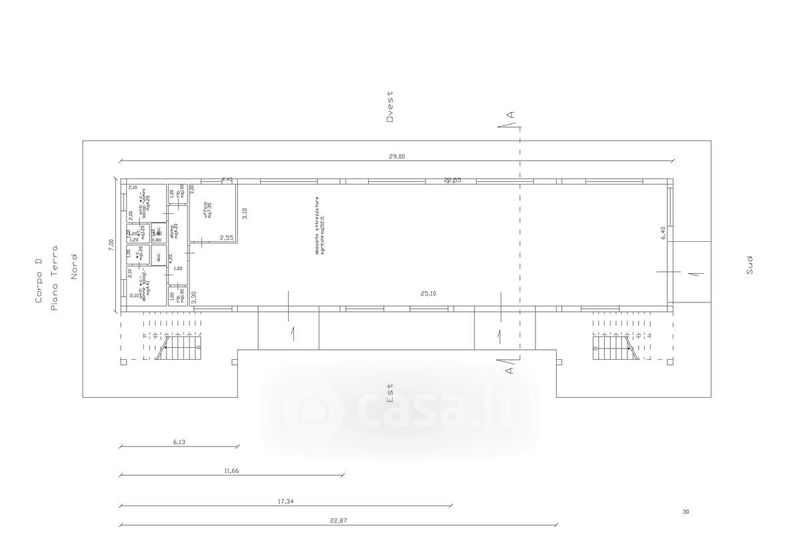
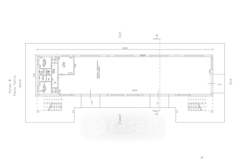
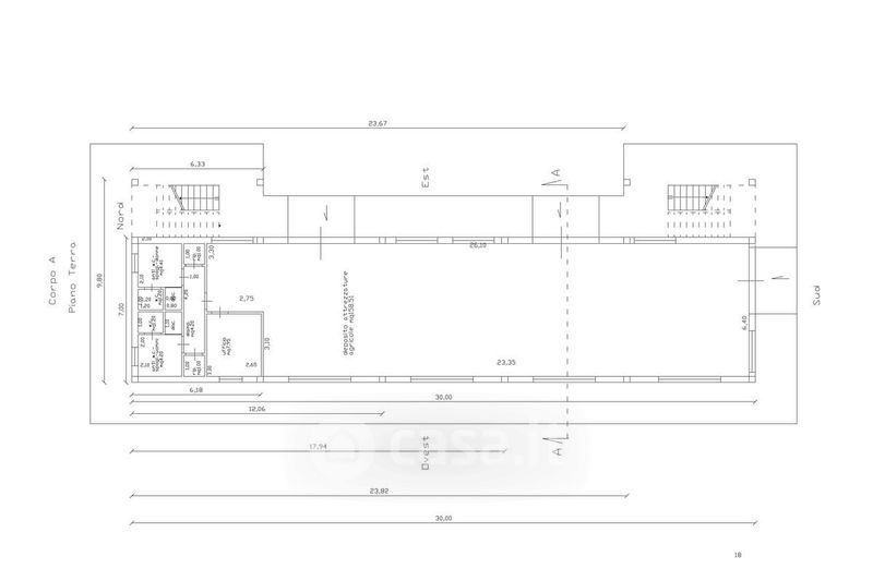
Villa in vendita Puntorio , Pachino
Salva
Casa.it
1/71
  • Street View
  • Map