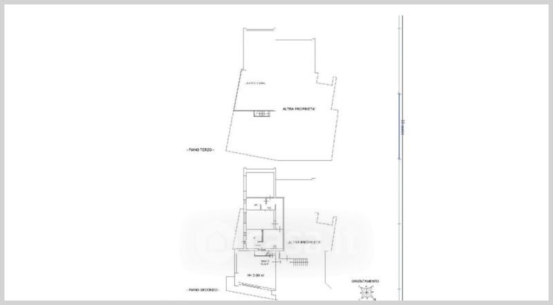
Villa in vendita Via la Marmora , Rosolini
Salva
Casa.it
1/32
  • Street View
  • Map