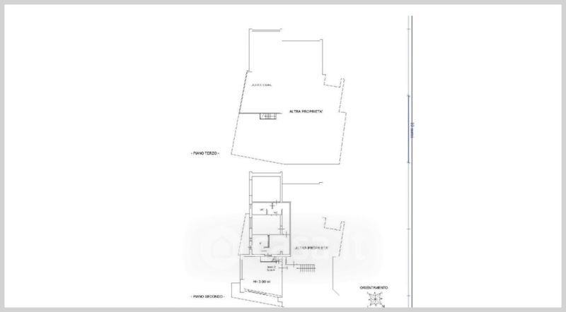
Villa in vendita Strada Provinciale 122 , San Piero Patti
Salva
Casa.it
1/37
  • Street View
  • Map