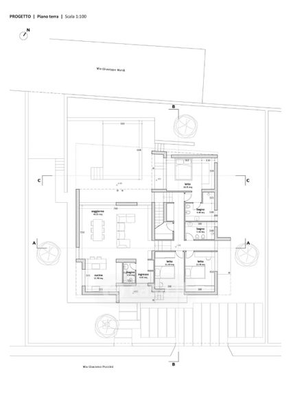
Villa in vendita Via Giacomo Puccini , Santa Flavia
Salva
Casa.it
1/5
  • Street View
  • Map