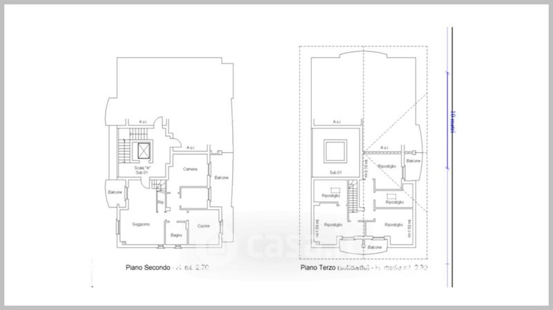
Villa in vendita Via Capo Stilo , Siracusa
Salva
Casa.it
1/32
  • Street View
  • Map