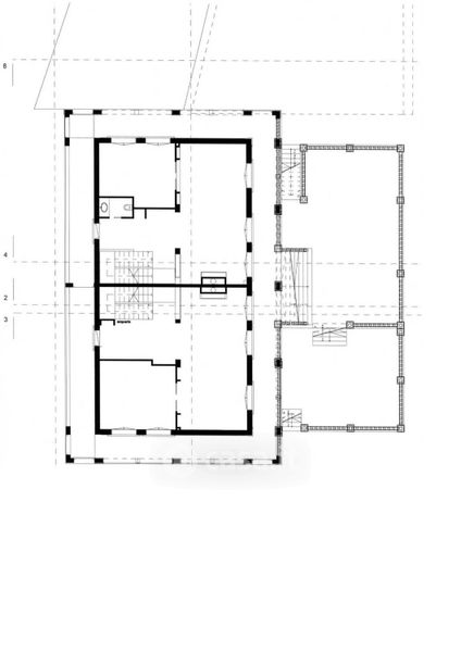
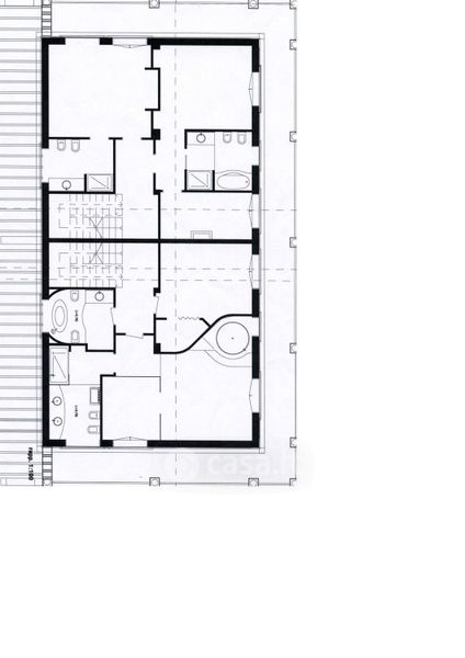
Villa in vendita Via Casalrosato 19, Valverde
Salva
Casa.it
1/37
  • Street View
  • Map