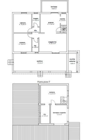
Villa in vendita Strada Senza Nome , Ventimiglia di Sicilia
Salva
Casa.it
1/24
  • Street View
  • Map