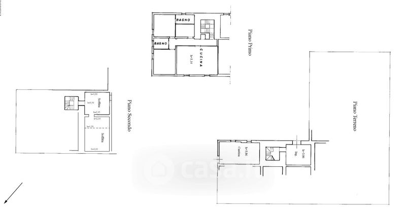
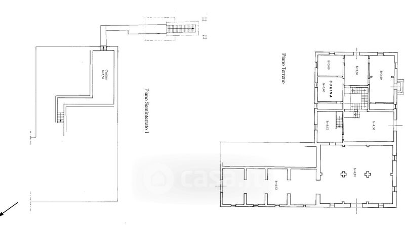
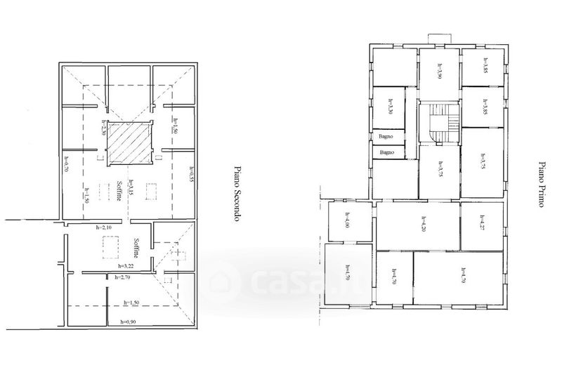
Villa in vendita Strada di Salteano , Asciano
Salva
Casa.it
1/41
  • Street View
  • Map