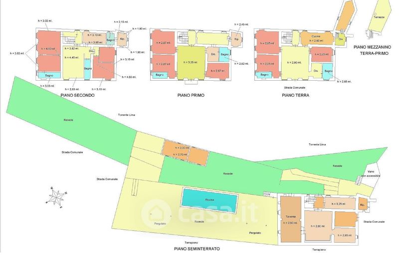
Villa in vendita Via della Torre , Bagni di Lucca
Salva
Casa.it
1/54
  • Street View
  • Map